Naturkonzept
Gotowy dom modułowy od 75m2
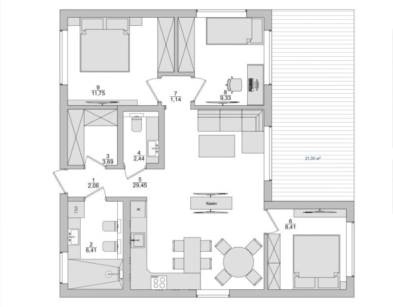
3 warianty domków na pozwolenie
Cena domu pod klucz obejmuje
1. Ściany
Drewno-Bazalt-Drewno
Narożniki i dekorację - metal

2. Okna i drzwi
Solidne okna i drzwi czarnego koloru


3. Instalacja
Wody zimnej / gorącej
Кanalizacyja
Klimatyzacja
Elektryczna
4. Ogrzewanie
Ogrzewanie podłogowe. Wi-Fi sterowanie temperatury za pomocą telefonu.
5. Osprzęt elektryczny
Stylowe i praktyczne elektryczne czarne okucia

6. Oprawy oświetleniowe
Stylowe, czarnego koloru. Światła LED

7. Sufit
Napinany.
Białego koloru.
8. Podłogi sałonu i sypialni
Laminat koloru drzewna.
Klasa 32.
9. Łazienka
Umywalka i bateria
Toaleta wisząca
Ukryta spłuczka
Podłoga i ściany z płytek
10. Baterie łazienkowe i prysznic
Grohe


11. Prysznic
Obszerna, przesuwna kabina prysznicowa

12. Gorąca woda
Bojler z sucha grzalka



Dodatkowe wyposażenie domu
1. Kominek
Kominek opalany drewnem zapewniający ciepło i przytulność

2. Klimatyzator
Da pełnej kontroli nad komfortem domowym latem i zimą

3. Meble kuchenne
Minimalistyczna kuchnia na miarę wnętrza i wymiarów kuchni

4. Meble do salonu i sypialni
Pierwszy wieczór po instalacji domu spędźcie jako rodzina w swoim nowym domu














































